highlights

  • Luxurious and spacious 3/4 BHK residences
  • Located in Sector 3 Gurugram with quick access to DEW and NH8
  • Green features - Tree of Life, Floral Garden, Green Walkway, Herb Garden, etc.
  • Spread over 7.5 Acres , 4 High Rise Towers
  • Multi-tier security system at project, club, tower and unit levels
  • Stunning range of amenities to elevate your lifestyle

LOCATION BENEFITS

  • Strategically located in Sector-3 Gurgaon.
  • Close to DLF Cyber City - NCR’s top Business hub.
  • Easy connectivity to NH-8, IGI Airport.
  • Near to popular schools and colleges- Blue Bells Modern School, Lady of Fatima Junior School, ICFAI University, MDI Gurgaon.
  • Nearby Shopping Hubs- Huda Sector-14 Market, Ansal Plaza, Star Mall, Ambience Mall.
  • 15 min drive from the Iffco Chowk Metro Station.
   TYPE   SIZE PRICE
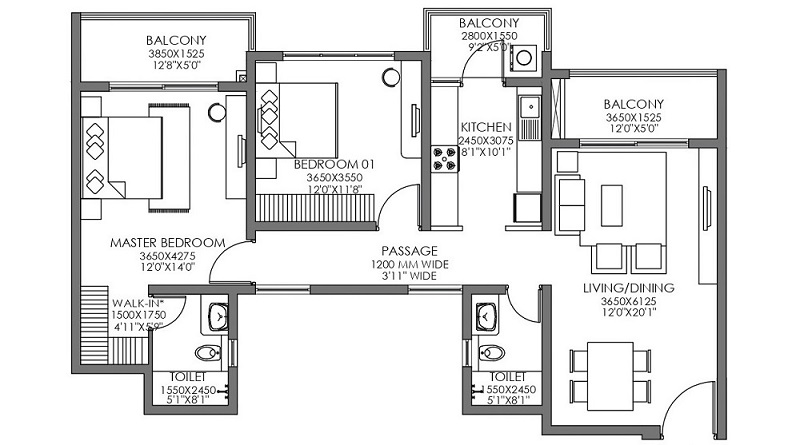
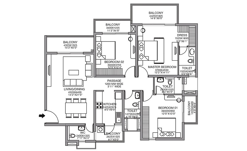
   2 BHK 1057 sq,ft On Request
   3 BHK 1497 sq.ft On Request
    4 BHK 1918 sq.ft On Request

SPECIFICATIONS

  • RCC Framed Structure. , Elevators:- standard make & suitable capacity lifts shall be provided.
  • Wall Finishing External:- Double coat Ace/Apex emulsion paint over a primary Coat. , Walls:- Clay bricks / Fall -G masonry with cement mortar.
  • Electrical :- Concealed copper wiring with switches of sin type/ modular reputed make with adequate light ,fan and power points.
  • T.V, Telephone & Internet :- Provided points of T.V and telephone, provision for intercom facility.

LOCATION

ENQUIRE NOW